Grinnell
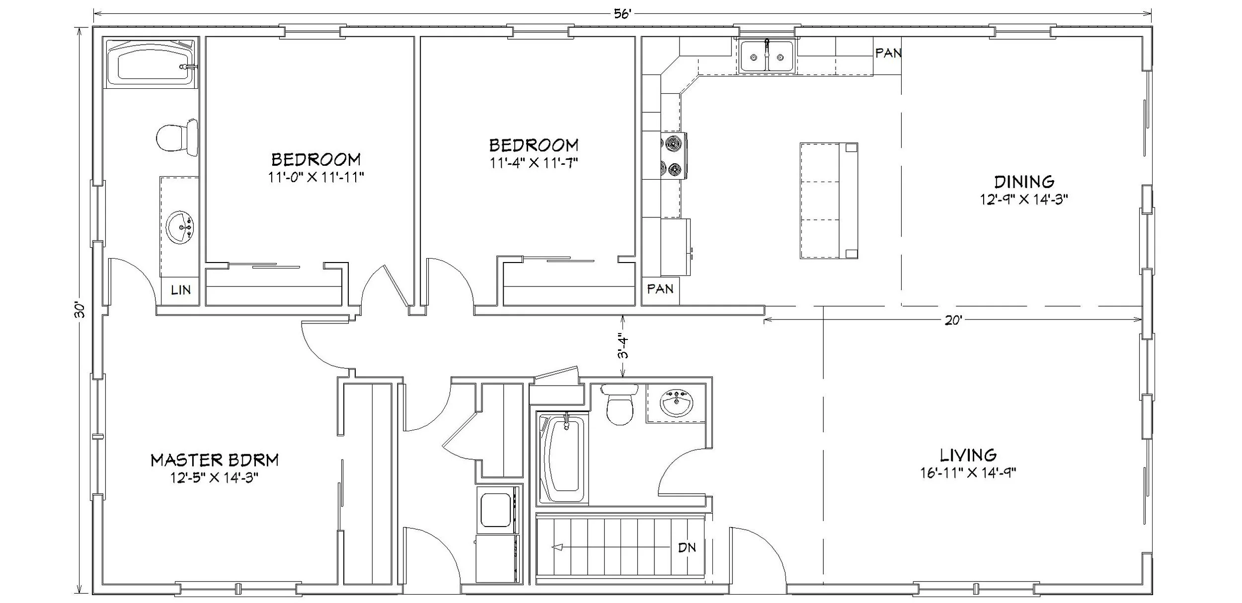
This floor plan can be completely customized. Wish the master bedroom was a little bigger? No problem. Want more kitchen space? Done. With our in-house CAD system we can alter a floor plan any way you like. This here is just the beginning.
(Floor plans may show some optional features.)
Adventure Base Price:
Rochester Base Price:
Base Price Includes:
Sales Tax
Delivery to Iowa
Set and finish of the home
