JUST ARRIVED
if display 10
Manufactured
26’8”' x 56'
1,457 ft.²
3 beds
2 baths
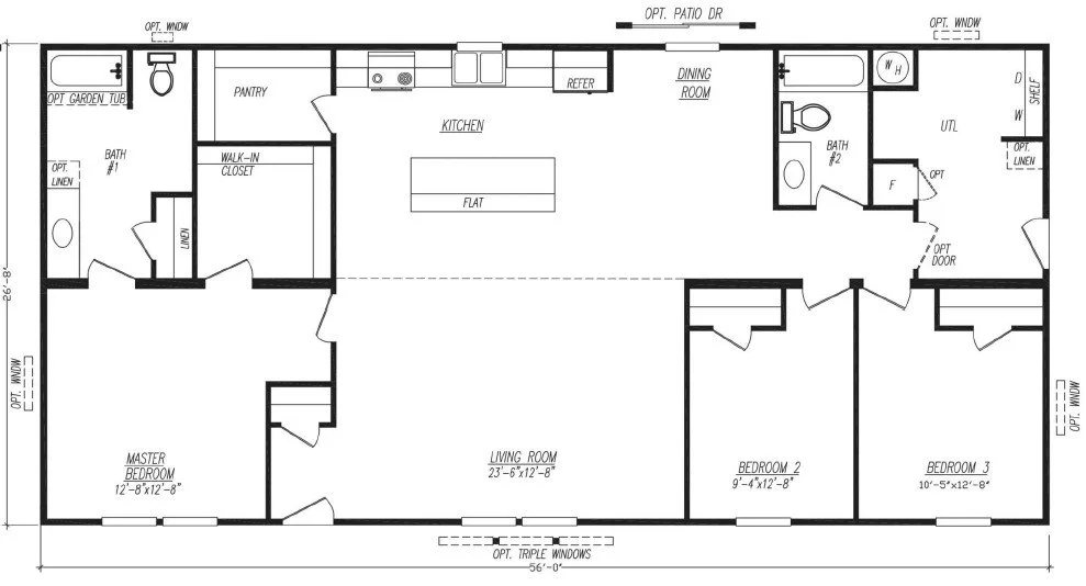
The Kalahari series from Adventure Homes is the simple and affordable line of manufactured homes. They offer a limited number of floor plans with a select offering of upgrades and options. This allows them to keep their costs lower and the homes are easier to build.
This home has a very popular floor plan with three bedrooms and 2 full bathrooms. It also includes a large walkin pantry and walkin master closet. The kitchen features a long eat at island that also provides additional work space.
The Kalahari series is only available with VOG wall panels on all the interior walls, but if you'd like to have drywall, the same floor plan could be built as a Mojave series that offers that upgrade, along with many others.
Upgrades from Standard:
Black Appliance Package #1 $1,050
Finished Base & Center Shelf w/ Fixed Overhead Shelf $192
Solid Cabinet Doors & Solid Cabinet Stiles $1,788
2” MDF Stile Cabinet Cove $66
1”x4” Laminate Backsplash Throughout $90
Gas Furnace w/ 100 AMP Service $450
Add Exterior Faucet $78
Wire & Brace for Ceiling Fan (capped off) $152
54” Shower Stall (where available) $374
No Seams Stomp Ceiling Required $534
3” MDF Stile Cove & Casing T/O Home $810
2" Plastic Blinds (per Window) $294
Hardwood Window Sills Throughout $252
Add Window Lineal (per window) $330
Architectural Shingles ilo 3Tab $792
Full Dormer (sectional) $1,383
Shake Insert inside Recessed Dormer $300
Vinyl Sliding Glass Door $1,092
Add Interior Passage Door $234
30# Roof Load $360
Alternate Frame for 30# Roof Load $1,020
2x6 Wall w/ R19
Insulation $882
R22 Floor Insulation $372
Material Surcharge: $1,100
