IF DISPLAY 12
Modular
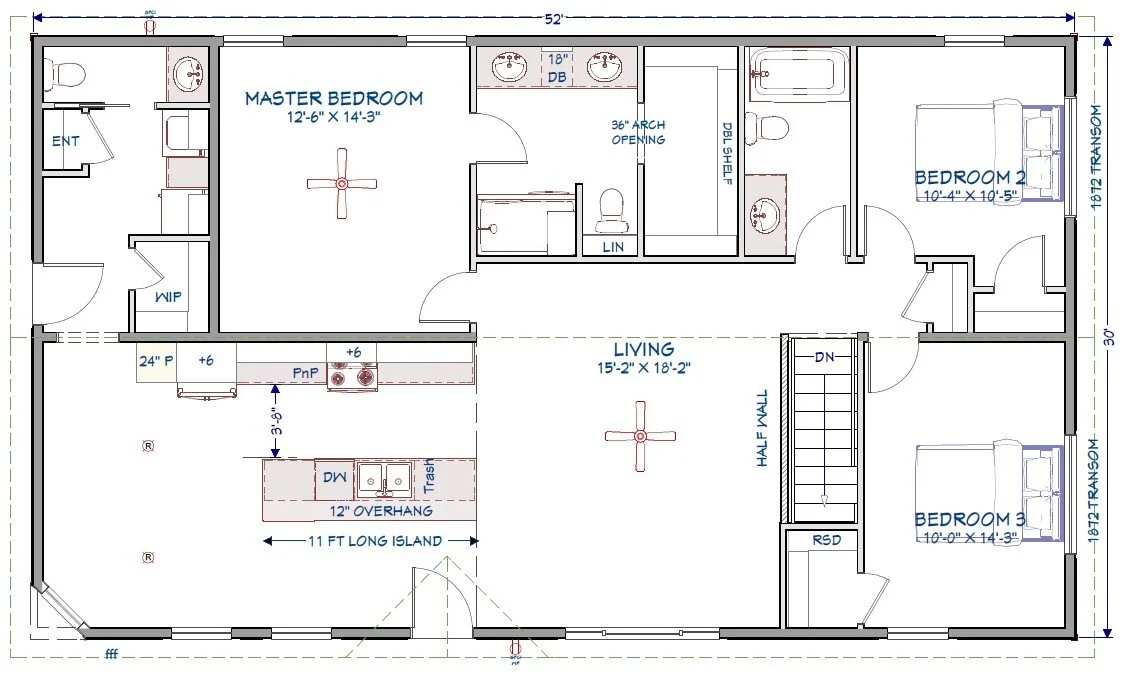
30' X 52'
1,560 ft.²
3 beds
2 baths
This 30' x 52' three-bed, two-bath home features an inviting front-facing layout with the kitchen, dining, and living rooms all positioned along the front of the home for bright, open living. A stylish clipped corner in the dining room adds architectural interest and extra charm, creating a unique focal point in this thoughtfully designed floor plan.
Upgrades from Standard:
Sunrise Package $4,462
State modular seal & National dues $95
Slide Out Trash Can W/ Cutting Board $216
Pots and pans 3 drawers $390
3 Door Pantry $288
24" Deep Cabinet over Refer $156
Base & Overhead In Utility $402
30" x 24 Overhead above Toilet $131
Mirrored Medicine Cabinet $138
Additional Closet Shelf $48
Dishwasher $540
Microwave above Range $474
Garbage Disposal $150
Omit std water heater -$200
Fish wire for thermostat $36
Omit Electric Furnace -$300
3-way switch for basement stair light $240
2 Can Lights In Dining Room $36
60" Tiled Shower w/ Bench $1,282
70" Tall Sliding Glass Shower Door $324
Shelf set for ceramic shower $254
Double bowl lav $218
Additional 1/2 Bath $563
25 oz carpet $416
Linoleum installed $500
3 1/2" Window Lineals $85
3 1/2" Window Lineals additional $275
Upgrade Vinyl Siding $1,640
36" Interior Door $180
24" Pantry w/ Etched Glass Door $210
Pocket Door w/ 2"x4" Interior Wall $420
92"x58" 3 Piece Picture Window $378
Transom Window 72" x 18" - each $780
In Wall Air Returns $227
8' 8" sidewalls $2,340
Basement stairway w/closet and posts $2,910
Half Wall & Wood Cap $138
Mini Dormer $510
Clipped Corner $220
30 x 72 Casement Estate window $1,950
Base Price:
OPTIONS:
TOTAL:
Base and option prices are subject to change
Price does not include any appliances
